Eine Oase der Ruhe!
Hier wohnen Sie auf Tuchfühlung mit dem angrenzenden Naturschutzgebiet und laufen nur wenige Schritte bis ins Zentrum von Sieglar mit allen Einrichtungen des täglichen Bedarfs. Eine Lage um die man Sie beneiden wird.
Um einen ersten Eindruck zu erhalten, schauen Sie sich gerne die 360°-Tour unserer Musterwohnung über den nachfolgenden Link an:/www.3d.sieger-sieger.de/tour/813
Hier wohnen Sie auf Tuchfühlung mit dem angrenzenden Naturschutzgebiet und laufen nur wenige Schritte bis ins Zentrum von Sieglar mit allen Einrichtungen des täglichen Bedarfs. Eine Lage um die man Sie beneiden wird.
Um einen ersten Eindruck zu erhalten, schauen Sie sich gerne die 360°-Tour unserer Musterwohnung über den nachfolgenden Link an:/www.3d.sieger-sieger.de/tour/813
Stadt
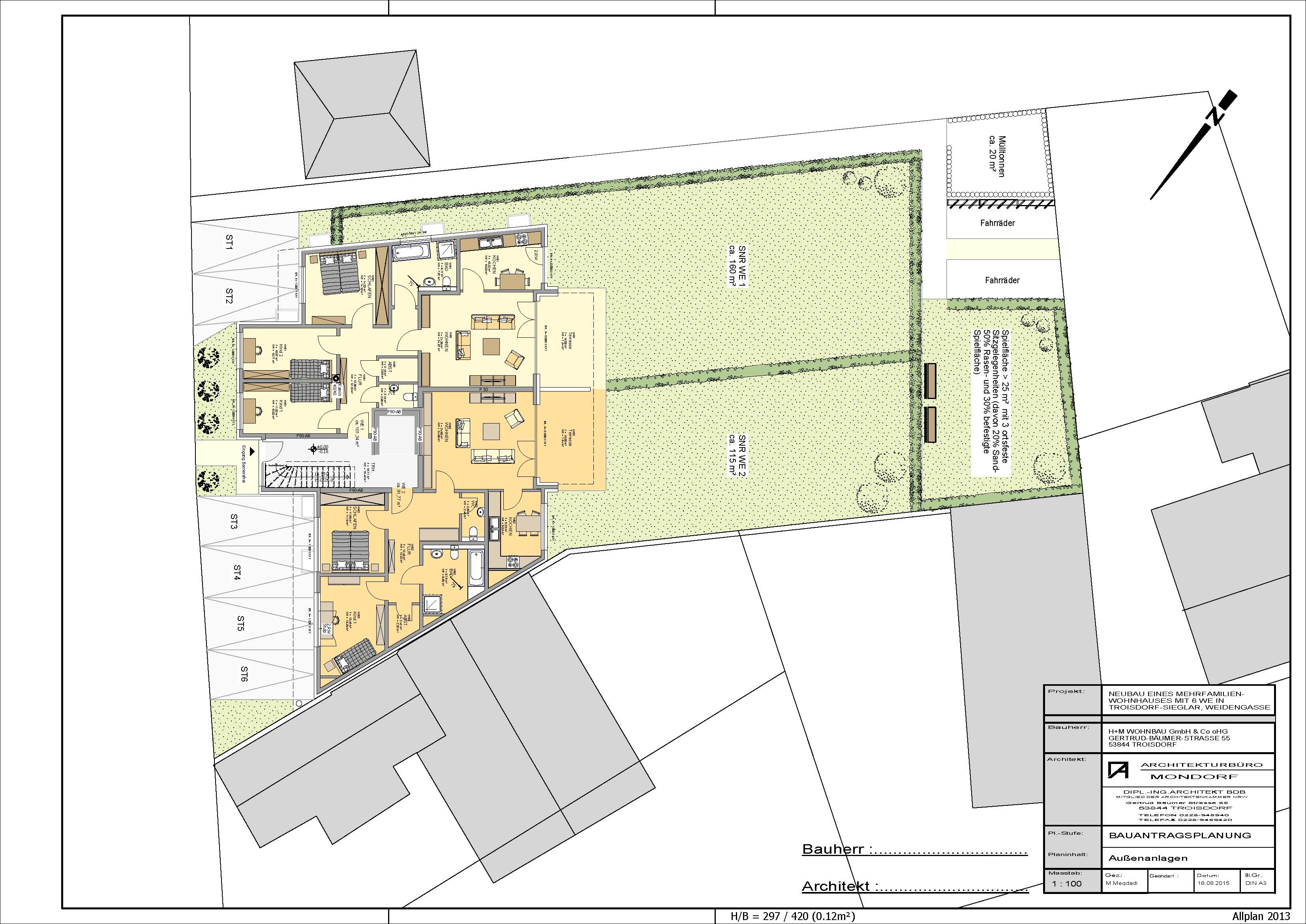
Troisdorf-Sieglar
Straße
Weidengasse 2a
Art des Objekts
MFH mit 6 Eigentumswohnungen mit Aufzug und PKW-Außenstellplätzen
Fertigstellung
2017
Wohnfläche
85,35 m² bis 101,74 m²
Kaufpreis
auf Anfrage
Architekt
Dipl.-Ing. Gerd Mondorf








